Lumb Lane
Adding the
“Wow factor”
Entrance hall double height space creating drama
Curated material palette
Simple, yet effective, texture and interest in the facade
Large single storey rear extension, Double storey side extension and porch, in Greater Manchester
Client: Private
Project Type: Domestic Residential
RIBA Stages: 0 - 7
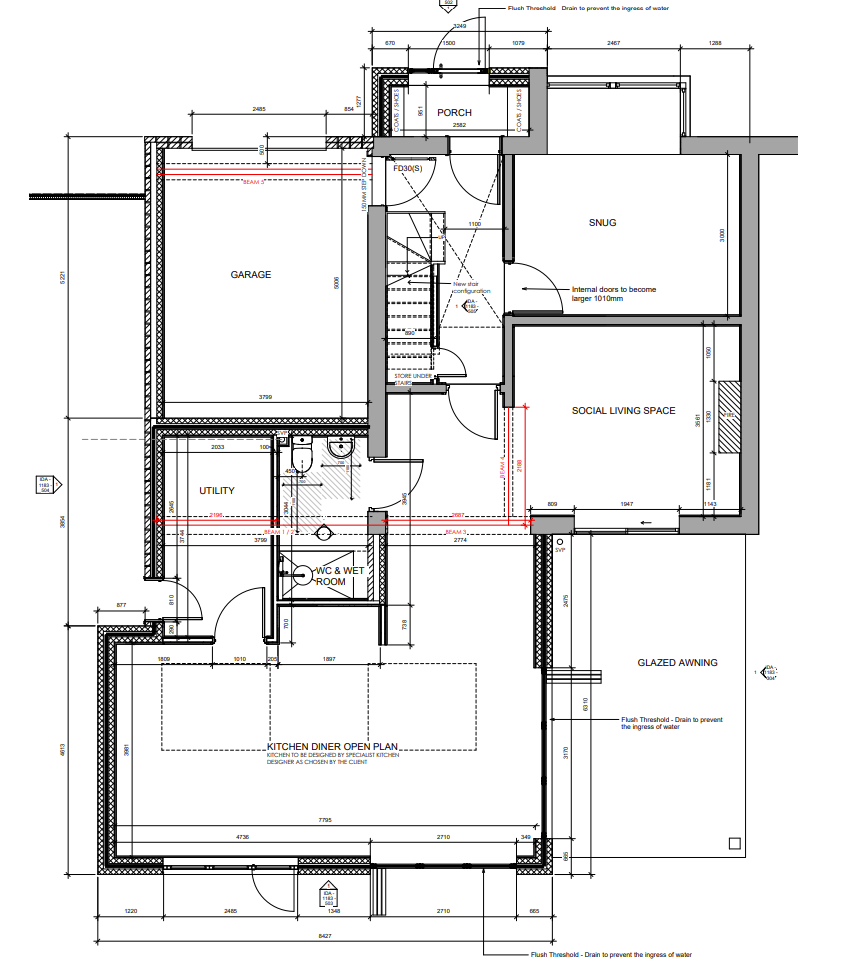
Our client approached us with a desire to create their forever home. They had expressed the desire to be able to creat the flexibility in the house to allow them to live in the house as they age. My client’s were experiencing growing concerns about future mobility and their current house just wasn’t suitable. The existing house had steps down into the kitchen area, large steps up and down from the front door and rear doors, and had no downstairs facilities.
Our clients have really made this house their own with their styling additions, using the architectural bones we gave them in our design. The design brief was simple, they wanted the "wow factor" they were keen to go against the grain of a traditional extension.
We designed a rear extension that would provide a large entertaining space at the rear of the property, creating the open plan seamless transitioning into different spaces that the client needed. The extension would have a contemporary look and is to house a large kitchen with a feature island, the space would also accommodate both a dining area and an informal seating area that opens out onto the garden with a covered glass roof, perfect for rainy Manchester days.
The practical elements of the brief were met with a downstairs wet room, level thresholds everywhere, and wider doors downstairs to allow them to futureproof, for wheelchair access to all areas of the downstairs. The snug is made larger to be converted into a bedroom space if the occupants can know longer access the first floor to truly create their forever home.
We really loved popping in for a cuppa at completion, to talk through their styling choices and how much they now love their new space.
